Duplex - vendu - 1190 Forest -

Duplex - à vendre - 1190 Forest
2 2 90 m² PEB : F

Description

!! OPTION !! FOREST - REF: 6285021 - BEAU DUPLEX 2 CHAMBRES - FAIBLES CHARGES !
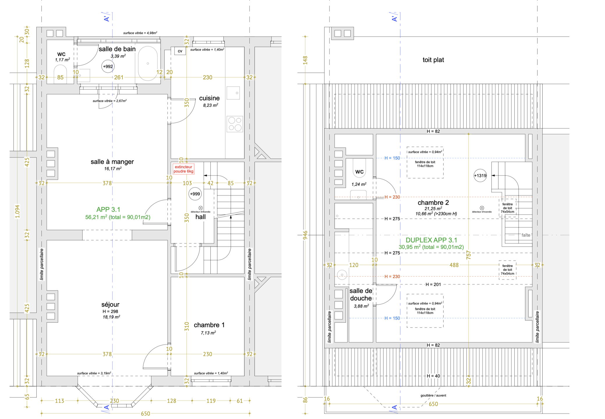
A proximité de la Place Saint-Denis, vous trouverez ce superbe duplex dans une petite copropriété de +-90m2 habitables.
Celui-ci est situé au 3ème et 4ème étage et se compose de :
Au 1er niveau : un hall d'entrée, un salon de +-18m2, une salle à manger de +-16m2, une cuisine de +-8m2, une salle de bain de +-3,5m2 avec WC séparé ainsi qu'une chambre de +-7m2.
Au 2eme niveau : actuellement aménager en studio, celui-ci se compose d'un hall d'entrée, une chambre/salle de séjour de +-21m2 avec cuisine ouverte ainsi qu'une salle de douche de +-4m2 avec WC séparé.
Divers: Double vitrage en PVC - Chauffage individuel au gaz - Cave - Pas de frais de copropriété - Toiture en très bon état - Cage d'escalier renovée.
PEB : F
N° de rapport PEB: 20170131-0000372819-01-4
NB: Les mesures et données sont à titre indicatif.
INFOS et VISITES? N'hésitez pas à contacter votre agence Prestige Consultor Immobilier au 02/537.60.01
N'hésitez pas à nous contacter pour une estimation gratuite de votre bien.

Adresse

Rue Pieter 40 - 1190 Forest

Général

Référence 6285021
Catégorie Duplex
Meublé Non
Nombre de chambres 2
Nombre de salles de bain 2
Garage Non
Terrasse Non
Parking Non
Surface habitable 90 m²
Disponibilité en fonct. du locataire

Bâtiment

Parking intérieur Non

Equipement de base

Accès handicapés Non
Cuisine Oui
Chauffage (ind/coll) (type (ind/coll)) individuel
Ascenseur Non
Double vitrage Oui
Chauffage (type) gaz
Type de cuisine équipée

Divers

Salle à manger Oui
Cave Oui

En chiffres

Nbre de toilette(s) (nombre) 2
Chambre 1 (surface) 7 m²
Chambre 2 (surface) 21 m²
Surface nette 90 m²
Salle de séjour (surface) 18 m²
Salle à manger (surface) 16 m²
Cuisine (surface) 8 m²
Salle de bain 1 (surface) 3.5 m²
Salle de bains 2 (surface) 4 m²

Equipement extérieur

Piscine Non

Équipements techniques

Châssis (type) pvc

Spécificités terrain

Type d'environnement central

Certificats / Attestations

Certificat d'électricité (oui/non) oui, non conforme

Certificats énergétiques

Label PEB (classe) F
PEB E-SPEC (kwh/m²/an) 299
Emission CO2 (émission CO2) 64
PEB code unique 20170131-0000372819-01-4
Prendre contact pour le bien : 6285021

* Champs obligatoires

Préférences pour les cookies

La protection de vos données personnelles est importante pour nous. C’est pourquoi nous détaillons ci-dessous les différents services et fonctionnalités du site qui utilisent des cookies et nous vous laissons décider des cookies que vous souhaitez autoriser ou refuser.

Veuillez cependant noter que si vous bloquez certains types de cookies, cela pourrait impacter votre expérience de navigation sur notre site ainsi que les fonctionnalités disponibles.

Nous utilisons des cookies fonctionnels obligatoires pour assurer le bon fonctionnement du site. Ils sont, par exemple, nécessaires pour retrouver le résultat d’une recherche ou enregistrer le choix de la langue.

Certaines fonctionnalités, comme l’affichage de vidéos ou de cartes géographiques, sont assurées via des composants externes développés par des partenaires comme YouTube ou Google. Certains composants utilisent des cookies qui sont susceptibles de permettre à ces tiers de suivre le comportement des internautes afin, par exemple, de réaliser du ciblage publicitaire. L’activation de ces fonctionnalités et des cookies associés est donc soumis à votre consentement.